Rue St-André
Laval (Pont-Viau), Laval H7G2Z9
Terrain | MLS: 11313352
319 000 $
Description
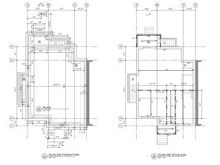
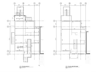
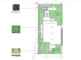
OPPORTUNITÉ RARE À LAVAL. Terrain situé sur la rue St-André, vendu avec plan de construction pour triplex/semi-détaché. Frais de PARC déja payé. Emplacement stratégique à forte demande, REVENUS potentiel de 67 200.00$/années idéal pour investisseur ou projet d'auto-construction. Secteur recherché offrant un accès rapide aux écoles, parcs, commerces, services essentiels et transports en commun. Quartier dynamique reconnu pour sa qualité de vie et son excellent potentiel de valorisation. Produit rare sur le marché.
Le terrain situé sur la rue St-André, dans le secteur
recherché de Pont-Viau à Laval, représente une opportunité
rare sur le marché actuel. La propriété est vendue avec un
plan de construction pour un semi-détaché, offrant à
l'acheteur la possibilité de concrétiser rapidement un
projet résidentiel conforme aux exigences municipales, sous
réserve des vérifications usuelles de l'acheteur.
L'emplacement bénéficie d'une demande soutenue, autant pour
l'investissement que pour l'auto-construction, grâce à sa
proximité immédiate avec les écoles primaires et
secondaires, parcs, commerces de proximité, épiceries,
restaurants et services essentiels. Le secteur est
également bien desservi par les transports en commun et
permet un accès rapide aux axes routiers majeurs,
facilitant les déplacements vers Montréal et les environs.
Le quartier Pont-Viau est reconnu pour sa qualité de vie,
son environnement urbain dynamique et son potentiel de
valorisation à long terme. Les acheteurs sont responsables
de toute vérification auprès des autorités compétentes
quant à la faisabilité de leur projet, à la réglementation
municipale et aux coûts de construction. Produit clé en
main, rarement offert, idéal pour un projet immobilier
réfléchi et stratégique.
Location
Caractéristiques
| Approvisionnement en eau | Aucun |
|---|---|
| Proximité | Autoroute/Voie rapide, Cegep, École primaire, École secondaire, Garderie/CPE, Golf, Hôpital, Parc-espace vert, Piste cyclable, Ski de fond, Transport en commun, Université |
| Topographie | Plat |
| Zonage | Résidentiel |
Cette inscription est présentée en collaboration avec EXP AGENCE IMMOBILIÈRE